Описание
Редуктор Ц2-500
— мощный двухступенчатый цилиндрический редуктор промышленного назначения, предназначенный для понижения частоты вращения и передачи высокого крутящего момента в тяжёлых условиях эксплуатации.
Техно-Маркет — производитель редукторов Ц2-500, изготавливаем оборудование под заказ с контролем на каждом этапе производства.
Назначение и область применения редуктора Ц2-500
Редуктор Ц2-500 применяется в:
ленточных и скребковых конвейерах;
горнодобывающем и карьерном оборудовании;
металлургических агрегатах;
дробильных установках;
буровых и насосных станциях;
тяжёлых промышленных приводах.
Подходит для непрерывного режима работы (S1) и высоких нагрузок.
Конструкция и принцип работы
Редуктор Ц2-500 — двухступенчатый цилиндрический редуктор с косозубым зацеплением, выполненный в массивном чугунном корпусе.
Конструктивные особенности:
увеличенный запас прочности;
высокая нагрузочная способность;
стабильная работа при ударных нагрузках;
масляная система смазки (разбрызгивание);
высокий КПД и сниженный уровень шума.
Технические характеристики редуктора Ц2-500
| Параметр | Значение |
| Тип | Цилиндрический, двухступенчатый |
| Модель | Ц2-500 |
| Межосевое расстояние | 500 мм |
| Передаточные числа | 8; 10; 12,5; 16; 20; 25; 31,5; 40 |
| Частота вращения входного вала | до 1500 об/мин |
| КПД | до 94 % |
| Режим работы | S1 |
| Климатическое исполнение | У, УХЛ |
| Категория размещения | 1–4 |
| Масса | по исполнению |
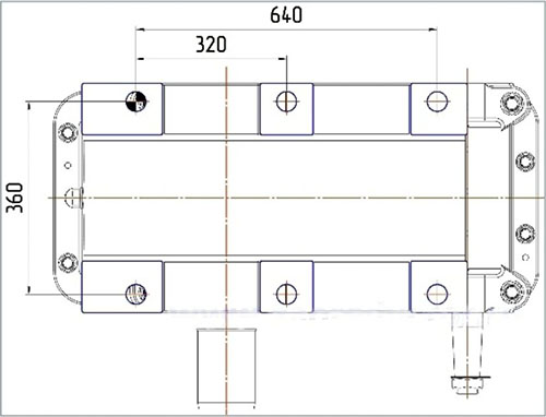
Габаритные размеры

Исполнения и варианты изготовления
Техно-Маркет изготавливает редукторы Ц2-500 под заказ:
с цилиндрическими или коническими валами;
с различными схемами сборки;
под установку тормоза;
под монтаж электродвигателя;
с нестандартными посадочными размерами.
Варианты сборки редуктора Ц2-500

Размеры и чертеж валов
Цилиндрический вал

| Вал | d | d1 | d2 | l | l1 | b | t | п |
| Выходной | 110s6 | 80 | M12 | 165 | 22 | 28 | 120 | 3 |
Конический вал

| Вал | l | l1 | d | d1 | b | t |
| Входной | 140 | 105 | 60 | M42*3,0 | 16 | 31,38 |
| Выходной | 210 | 165 | 110 | M80*4,0 | 25 | 55,88 |
Чертеж вала в виде части зубчатой муфты

| L | l | l1 | d | d1 | d2 | b | Зацепление | |
| m | z | |||||||
| 330 | 15 | 65 | 336 | 150f8 | 215 | 40 | 8 | 40 |
типоразмеры подшипников, устанавливаемых на двухступенчатые горизонтальные крановые цилиндрические редукторы Ц2-500
| Типоразмер редуктора | Входной вал ( быстро- ходный ) | Коли- чество | Промежу- точный вал | Коли- чество | Выходной вал ( тихо- ходный ) конусный, цилиндрический, для присоединения командаппарата | Коли- чество | Выходной вал ( тихо- ходный ) в виде зубчатой полумуфты | Коли- чество |
Ц2-500 | 2312 | 2 | 7517 | 2 | 7224 | 2 | 7224 2007128 | 1 1 |
Подготовка редуктора Ц2-500 к работе
1. Общие положения
Редуктор Ц2-500 перед вводом в эксплуатацию должен быть правильно смонтирован, заправлен смазкой и проверен. Соблюдение требований подготовки обеспечивает надёжную и длительную работу редуктора при номинальных нагрузках.
2. Внешний осмотр и приёмка
Перед установкой редуктора необходимо:
проверить комплектность поставки согласно паспорту;
осмотреть корпус на отсутствие трещин, сколов и деформаций;
убедиться в отсутствии повреждений валов и шпоночных пазов;
удалить консервационную смазку с концов валов и посадочных поверхностей;
проверить наличие заводской таблички и маркировки.
3. Установка редуктора
3.1 Монтаж на основание
редуктор устанавливается на жёсткое, ровное и виброустойчивое основание;
опорные поверхности должны быть выровнены (допускаемое отклонение не более 0,1 мм на 1 м);
крепление выполняется болтами соответствующего класса прочности;
перекос корпуса при затяжке болтов не допускается.
3.2 Соосность валов
валы редуктора и приводного механизма должны быть строго соосны;
рекомендуется использовать упругие муфты;
радиальные и осевые перекосы приводят к ускоренному износу подшипников и зубчатых передач.
4. Заправка смазки
4.1 Рекомендуемые масла
Для редуктора Ц2-500 применяются индустриальные трансмиссионные масла:
ТСп-10 — при температуре окружающей среды от 0 до +40 °C;
ИРП-150 — от −10 до +25 °C;
ИТП-200 / ИТП-300 — от +15 до +50 °C.
Допускается применение аналогов с соответствующими вязкостными характеристиками.
4.2 Объём масла
ориентировочный объём масла: 12–15 л (уточняется по исполнению);
уровень масла должен доходить до контрольного отверстия или середины маслоуказателя;
перелив масла не допускается.
5. Проверка перед пуском
Перед первым включением необходимо:
проверить уровень масла;
вручную провернуть входной вал редуктора;
проверить затяжку крепёжных болтов;
убедиться в исправности уплотнений;
проверить правильность подключения электродвигателя.
6. Пробный пуск
6.1 Пуск без нагрузки
первый пуск выполняется без нагрузки;
продолжительность — не менее 20–30 минут;
контролируется:
уровень шума;
вибрация;
отсутствие течи масла;
температура корпуса (не выше допустимой).
6.2 Пуск под нагрузкой
нагрузка увеличивается плавно;
в первые часы эксплуатации нагрузка не должна превышать 70–80 % от номинальной.
7. Обкатка редуктора
Обкатка редуктора Ц2-500 проводится в течение 80–100 часов:
без резких пусков и перегрузок;
с регулярным контролем температуры и уровня масла.
По окончании обкатки рекомендуется:
слить отработанное масло;
промыть редуктор;
залить свежее масло до номинального уровня.
8. Эксплуатационные рекомендации
не допускать превышения допустимого крутящего момента;
регулярно проверять уровень и состояние масла;
проводить плановое техническое обслуживание;
контролировать состояние подшипников и уплотнений.
9. Требования безопасности
монтаж и обслуживание проводить при отключённом электропитании;
вращающиеся части должны быть закрыты защитными кожухами;
работы допускаются только обученным персоналом.
10. Ввод в эксплуатацию
Редуктор Ц2-500 считается введённым в эксплуатацию после:
завершения обкатки;
подтверждения нормальных рабочих параметров;
внесения записи в журнал эксплуатации.
🔧 Возможна консультация и подбор электродвигателя
(мощность, напряжение, климатическое исполнение — по согласованию с заказчиком).
Контроль на каждом этапе производства
Производство редукторов Ц2-500 в Техно-Маркет включает:
✔ входной контроль металла и заготовок
✔ механическую обработку валов и шестерён
✔ контроль геометрии зубчатых зацеплений
✔ сборку редуктора
✔ проверку зазоров
✔ обкатку под нагрузкой
✔ выходной контроль ОТК
Каждый редуктор проходит поэтапный контроль качества перед отгрузкой.
Смазка и обслуживание
Рекомендуемые масла:
ТСп-10
ИРП-150
ИТП-200 / ИТП-300
Регулярный контроль уровня смазки обеспечивает длительный ресурс и надёжную работу редуктора.
Комплект поставки
редуктор Ц2-500 в сборе;
паспорт изделия;
чертежи и установочные размеры;
упаковка.
Дополнительно по согласованию:
электродвигатель;
муфта;
тормоз;
индивидуальное исполнение.
Купить редуктор Ц2-500 от производителя
Вы можете купить редуктор Ц2-500 напрямую у производителя Техно-Маркет:
без посредников;
с гарантией;
с технической поддержкой;
с доставкой по Украине, СНГ и на экспорт.
📩 Оставьте заявку — подберём оптимальное решение под вашу задачу.








